Хотим уведомить вас о том, что изменения курса валют могут повлиять на стоимость гаражных секционных ворот и она может отличаться от указанной. Поэтому, для уточнения актуальной цены, обращайтесь за информацией к нашим менеджерам.
Безопасность
Защита от защемления пальцев (CFC-Free)
Коррозионная стойкость
Нержавеющие направляющие и защита на 12 лет.
Европейское качество
Официальная гарантия на все модели
Индивидуальный дизайн
Широкий выбор цветов и фактур
Теплоизоляция
Сэндвич-панели толщиной 40 мм
Удобство
Простота установки и эксплуатации

Секционные гаражные ворота РИТЕРНА предназначены для эксплуатации в помещениях небольшой площади. Их часто заказывают собственники загородных домов, которые ищут надежные и эффективные в работе модели для комплектации гаража.
Ворота хорошо удерживают тепло, защищают от взлома и проникновения посторонних. Продуманная система открывания и закрывания створок позволяет автовладельцу рационально использовать как внутреннее, так и внешнее пространство помещения.
Секционные гаражные ворота из сэндвич панелей имеют компоненты, которые были специально разработаны и прошли испытания на промышленном оборудовании. За годы работы мы постоянно совершенствовали каждую деталь механизмов ворот, используя нашу собственную систему "интеллектуального" контроля качества. Этот процесс никогда не прекращается, поскольку мы постоянно стремимся улучшить наши ворота и достичь высочайшего качества.
Сэндвич-панели в конструкции секционных гаражных ворот изготавливаются на собственных производственных мощностях ООО «Ритерна» в РБ. Выпуск продукции осуществляется в соответствии со строгими европейскими стандартами и с учетом требований белорусского законодательства. Готовые изделия имеют привлекательный внешний вид, отличаются высокими показателями тепло- и звукоизоляции.
Толщина сэндвич-панелей для изготовления гаражных ворот составляет 40 мм. На наружных пластинах из стали предусмотрено трехслойное полимерное покрытие, которое может быть гладким или с выраженной фактурой. Защиту панелей от коррозии обеспечивает специальный состав, изготавливаемый на базе полиэфирных соединений. Плотность пены, применяемой при производстве, варьируется в диапазоне 47–49 кг/м3.
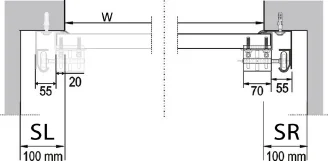
Оцинкованные направляющие в моделях имеют толщину не менее 1,5 мм. При производстве промышленных гаражных конструкций применяются более крепкие направляющие (толщиной не менее 2 мм), которые могут быть выполнены из нержавеющей стали. Простой монтаж и управление створкой при эксплуатации обеспечиваются роликами с подшипниками и нейлоновыми ободками.
Компания ООО «Ритерна» стремится удовлетворить любые запросы покупателей. Мы гарантируем безупречное качество выпускаемой продукции и предлагаем доступные цены на любые модели в каталоге. Если вы ищете надежные секционные гаражные ворота в Минске, наши конструкции – это то, что вам нужно!
![]()
В стремлении удовлетворить любые требования клиентов мы предлагаем купить надежные гаражные ворота в Минске с эксклюзивным исполнением. В коллекции ООО «Ритерна» представлены модели в широком разнообразии вариантов дизайна. Большой ассортимент фактур и оттенков позволяет каждому покупателю подобрать именно то секционное полотно, которое будет гармонично смотреться в сочетании с архитектурой дома и ландшафтным дизайном участка.
В зависимости от своих предпочтений клиент может выбирать конструкции с классической или широкой полосой, гладкой текстурой, микро- и макро полосой, полосой сверху. В спектр наших предложений по порошковому окрашиванию панелей входит свыше 200 цветов – от белого или черного до необычных расцветок, которые придают гаражному полотну неординарный внешний вид.
Сэндвич-панели толщиной 40 мм используются для создания секционных ворот, которые обладают отменными свойствами термо- и звукоизоляции. К тому же, они имеют прочную структуру, легко обслуживаются и безопасны в эксплуатации. Данный тип ворот может быть изготовлен по индивидуальному заказу с любым типом направляющих.
Обычный эксплуатационный срок торсионных пружин составляет 25 000 циклов.
Толщина оцинкованных направляющих и фурнитуры не менее 1,5 мм. Для промышленных ворот используются направляющие толщиной не менее 2 мм, которые могут быть изготовлены из нержавеющей стали.
Секционные гаражные ворота являются идеальным решением для обеспечения защищенности внутреннего пространства помещения. Они гарантируют достаточный уровень звуко- и теплоизоляции, обеспечивают надежность и удобство в использовании, благодаря своим узлам и механизмам, а также соответствуют основным требованиям, предъявляемым к конструкциям гаражных ворот. Независимо от выбранного конструктивного исполнения, секционные гаражные ворота обеспечивают защиту от непогоды, ветра, пыли, воды и других факторов внешней среды. Таким образом, они являются оптимальным выбором для тех, кто ценит безопасность и комфорт в использовании гаражного помещения.
Основные технические особенности секционных ворот заключаются в уникальной конструкции дверного полотна и специфической технологии его открытия и закрытия. Эти показатели применимы для всех типов продуктов данного вида. Один из ключевых элементов – это скоординированное движение отдельных, динамично соединенных секций, которые проходят по направляющим, имеющим определенный угол изгиба.
Обычно стандартные гаражные секционные ворота устанавливаются в гаражах и имеют несколько секций сэндвич-панелей, которые опускаются последовательно при закрывании. Некоторые путают гаражные секционные ворота с роллетными воротами, но между ними есть различия. Рулонные ворота напоминают прочную пленку, а роллетные состоят из алюминиевых ламелей, которые наматываются на вал. Однако, наиболее современными и удобными для использования являются поднимающиеся гаражные секционные ворота, которые также благодаря использованию сэндвич-панелей обладают хорошей теплоизоляцией.
Мы создаем полотно из сэндвич-панелей, в которых между стальными пластинами находится пенополиуретан высокой плотности. Для увеличения энергосберегающих свойств секционных ворот, мы размещаем специальные уплотнители по всему периметру и между секциями. Они помогают предотвратить примерзание ворот в зимний период. Чтобы полотно перемещалось в проеме, мы устанавливаем направляющие. Также в воротах есть торсионный механизм, но в некоторых моделях он может быть заменен на пружины растяжения. Дополнительные элементы, такие как ролики для направляющих, помогают улучшить работу ворот.
Встроенная калитка – повышает комфорт в использовании конструкции, экономит ресурс торсионного механизма и продлевает сроки его службы.
Боковая дверь – обеспечивает автовладельцу возможности для отдельного входа/выхода. Гармонично смотрится на фоне ворот и придает фасаду гаража законченный вид.
Панорамные панели и окна – улучшают освещение внутреннего пространства, придают полотну индивидуальность и стиль.
Ручки – отличаются лаконичностью и дополняют общий дизайн ворот.
Замки и задвижки – обеспечивают надежное запирание изнутри полотна.
Вентиляционные решетки – помогают регулировать уровень влажности в техническом помещении, облегчают проветривание.
Лазы для домашних животных – позволяют питомцам свободно выходить на прогулку.
Наш эксперт бесплатно:
ОСТАВЬТЕ ЗАЯВКУНА РАСЧЁТ СТОИМОСТИ






